Авторизация
Подписчики
0
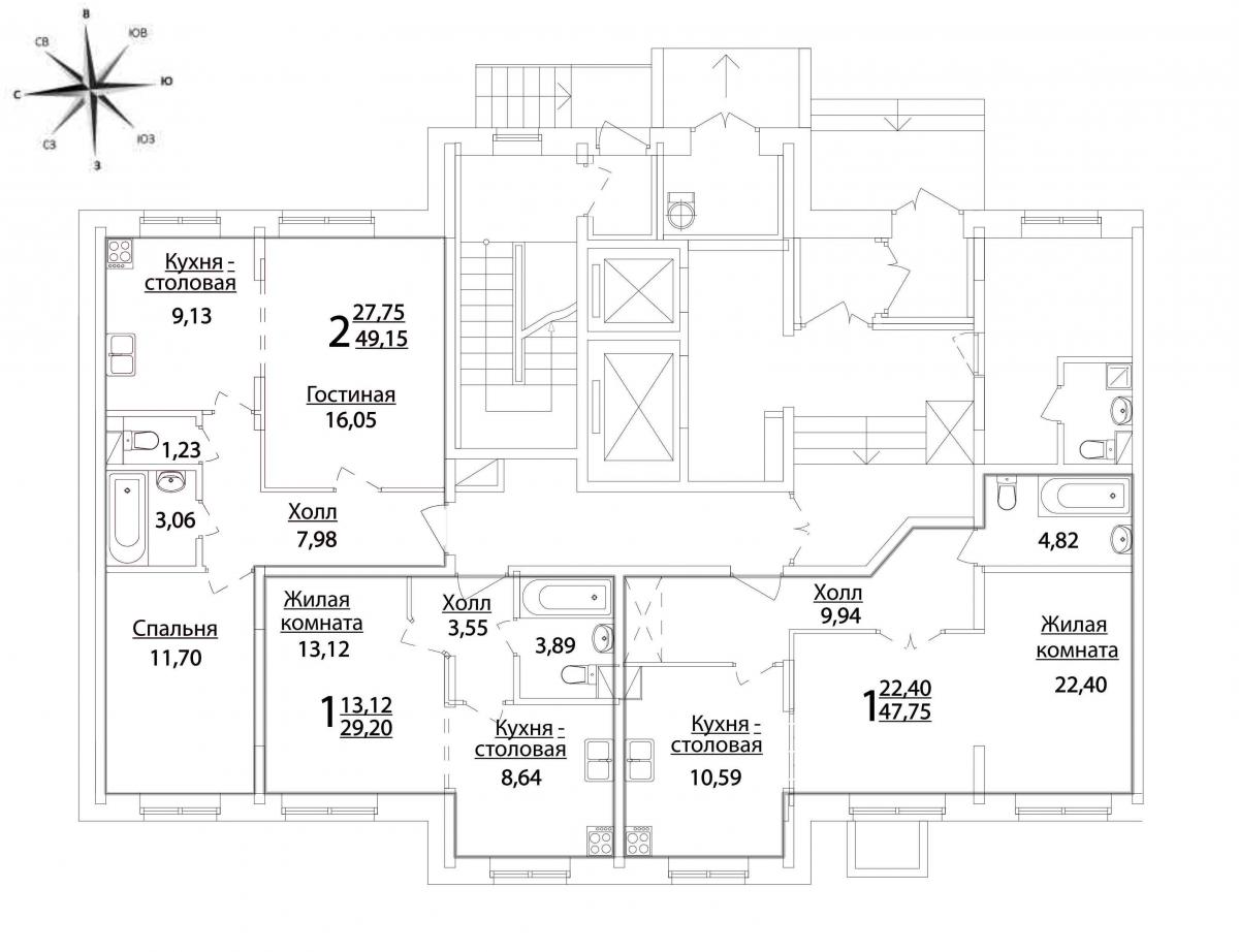
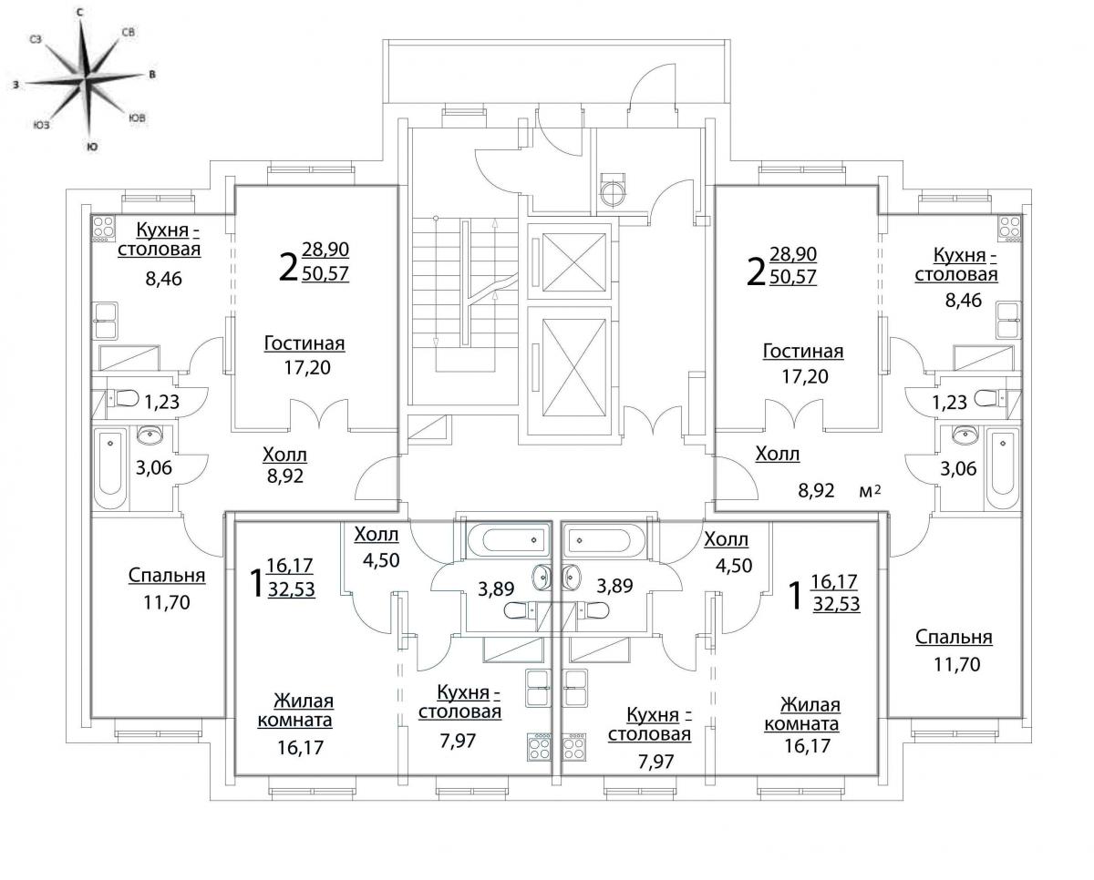
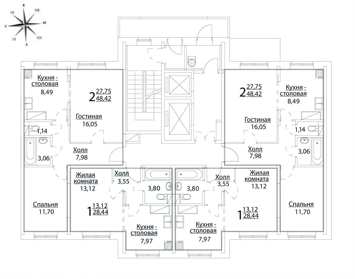
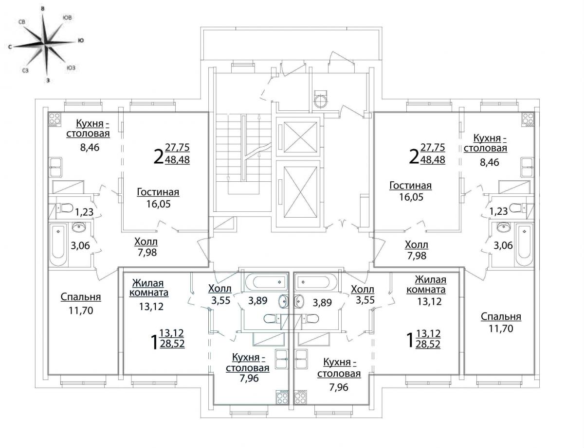
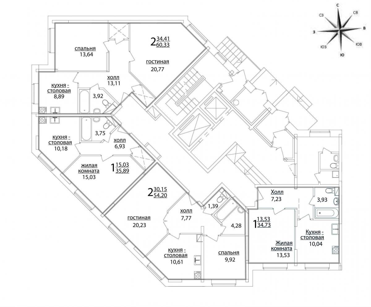
Планировки, перепланировки, метраж квартир..
Автор
ИринаМа, в Микрорайон "Новое Пушкино"
-
Похожий контент
-
От greg
Коллеги, разрешите всех поздравить. Проект судя по всему вышел на финишную прямую, не за горами сдача дома.
Предлагаю обсудить в этой ветке вопросы дизайна, планировки и ремонта, дабы всем не изобретать велосипед, а делиться и заимствовать удачные решения. Тем более, что планировки у нас схожие, особенно в части больших кухонь-студий. Скажу сразу, у меня цели "сделать как угодно, лишь бы не похоже на других" нет Возможно, кто-то думает по-иному. Ну что же, дизайн не догма, пути у каждого свои, но все равно должно быть интересно - как там у соседа?
-
От slavrenova
Я присматриваюсь к этому домику, уж больно мне трёшки нравятся, кухня-столовая 21-22м, красота и 3 спальни, как раз для нашей семьи с 2-мя детьми, да денег нет буду ждать и думать где взять на первый взнос...
-
Популярное сейчас
-
- 82 ответа
- 3 175 просмотров
-
-
Последние посетители 0 пользователей онлайн
Ни одного зарегистрированного пользователя не просматривает данную страницу
